Succubus Club

CamNet - das Wiki
Succubus Club
Besonderer Ort
StadtJersey City
Adresse580 Marin Blvd, Jersey City, NJ 07310, Vereinigte Staaten
AnsässigCletus Jones, Helena, Jeanette Voerman, Penelope Gilmore, Prias und Therese Voerman
Ein Ort der Entgleisungen, des Loslassens, ein Ort im neutralen Niemandsland zwischen Camarilla, Sabbat und Anarchen. Ein Club mit einer langen Geschichte, dunklen Geheimnissen und einer ungewissen Zukunft.
Die Karte wird geladen …

Geschehnisse vor Ort

  • 5 Dezember 2000 - 6 Dezember 2000: 18.2. Ewige Liebe; Anwesend: Susan, Franzi und Ewe; Geschehnisse: Eine Schnitzeljagd führt unsere kleine Gruppe an für sie vorbestimmte Orte, einer Spur zu folgen, die von langer Hand geplant, ausgelegt wurde, viele Schicksaale und einige Herzen zu berühren.

Die Masse an jungen Leuten, die vor dem alten Industriegebäude auf Einlass wartet, ist ein Zeichen von dessen Popularität. Neben den hunderten von Menschen und den übervollen Parkflächen sind die vier großen Strahler, die den Nachthimmel beleuchten, die deutlichsten Zeichen, dass die gro-ße, ehemalige Industriehalle jetzt einem anderen Zweck dient. Das Gebäude selbst versprüht den kalten Charme eines 50 Jahre alten Backsteingebäudes. Es hat vier Stockwerke und ein paar kleiner Fenster im obersten Stock. Eine einzelne, doppelflügelige Eingangstür links an der schmalen Seite des Rechteckgrundrisses kanalisiert die Besucher nur sehr langsam.

Sicherheitspersonal und Absperrbänder bringen die motivierte Menge in Reihe, an denen ihr vor-bei geht. Die vielen neidischen, neugierigen und teilweise leicht aggressiven Blicke ignorierend, wendet ihr euch an einen der Sicherheitsmenschen am Eingang.

Karten[Bearbeiten | Quelltext bearbeiten]

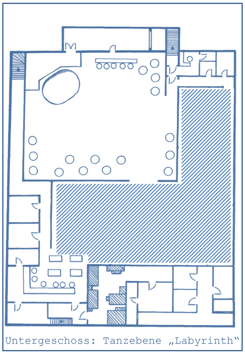
Untergeschoss "Das Labyrinth"[Bearbeiten | Quelltext bearbeiten]

Labyrinth

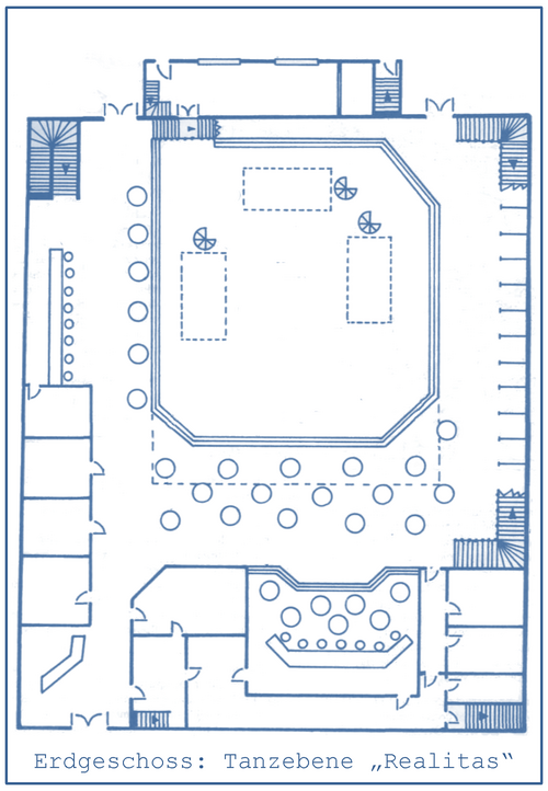
Erdgeschoss "Realitas"[Bearbeiten | Quelltext bearbeiten]

Realitas

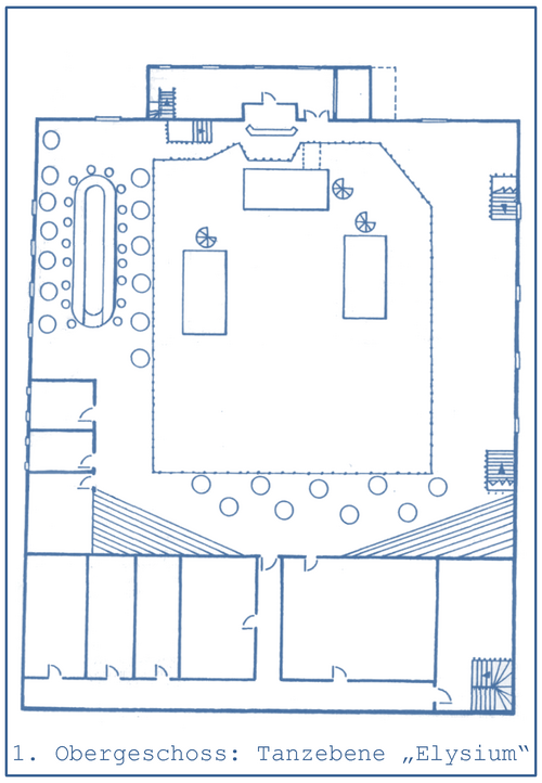
Obergeschoss "Elysium"[Bearbeiten | Quelltext bearbeiten]

Elysium

Obere Ebenen (Zugangsbeschränkt)[Bearbeiten | Quelltext bearbeiten]

Succubus Club Ebene 3.png Succubus Club Ebene 4.png